- – Casa Parter + Mansarda – suprafata construita la sol de 133.85 mp si suprafata desfasurata de 234.20 mp, casa are o suprafata utila totala de 183.25 mp
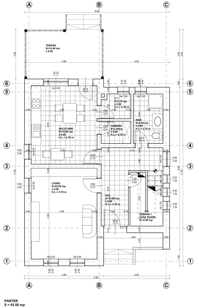
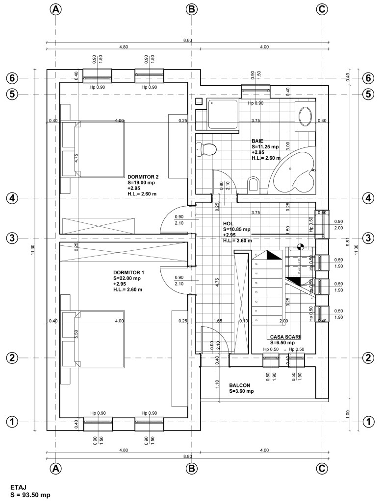
- 2 – Casa Parter + Etaj – suprafata construita la sol de 93.50 mp si suprafata desfasurata de 187 mp, casa are o suprafata utila totala de 141.5 mp.
3. Casa Parter – suprafata construita la sol de 161.3 mp si suprafata desfasurata de 196.30 mp, casa are o suprafata utila totala de 131 mp.
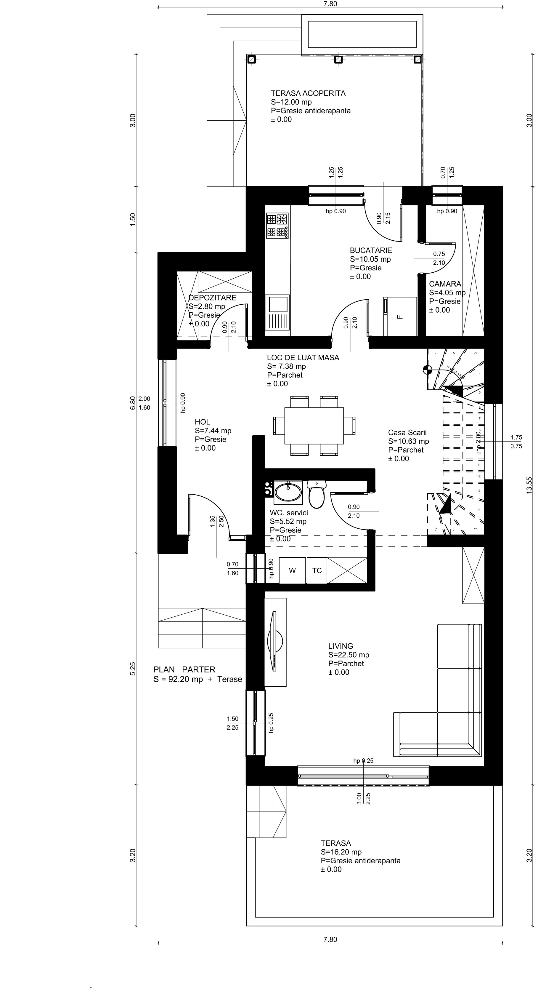
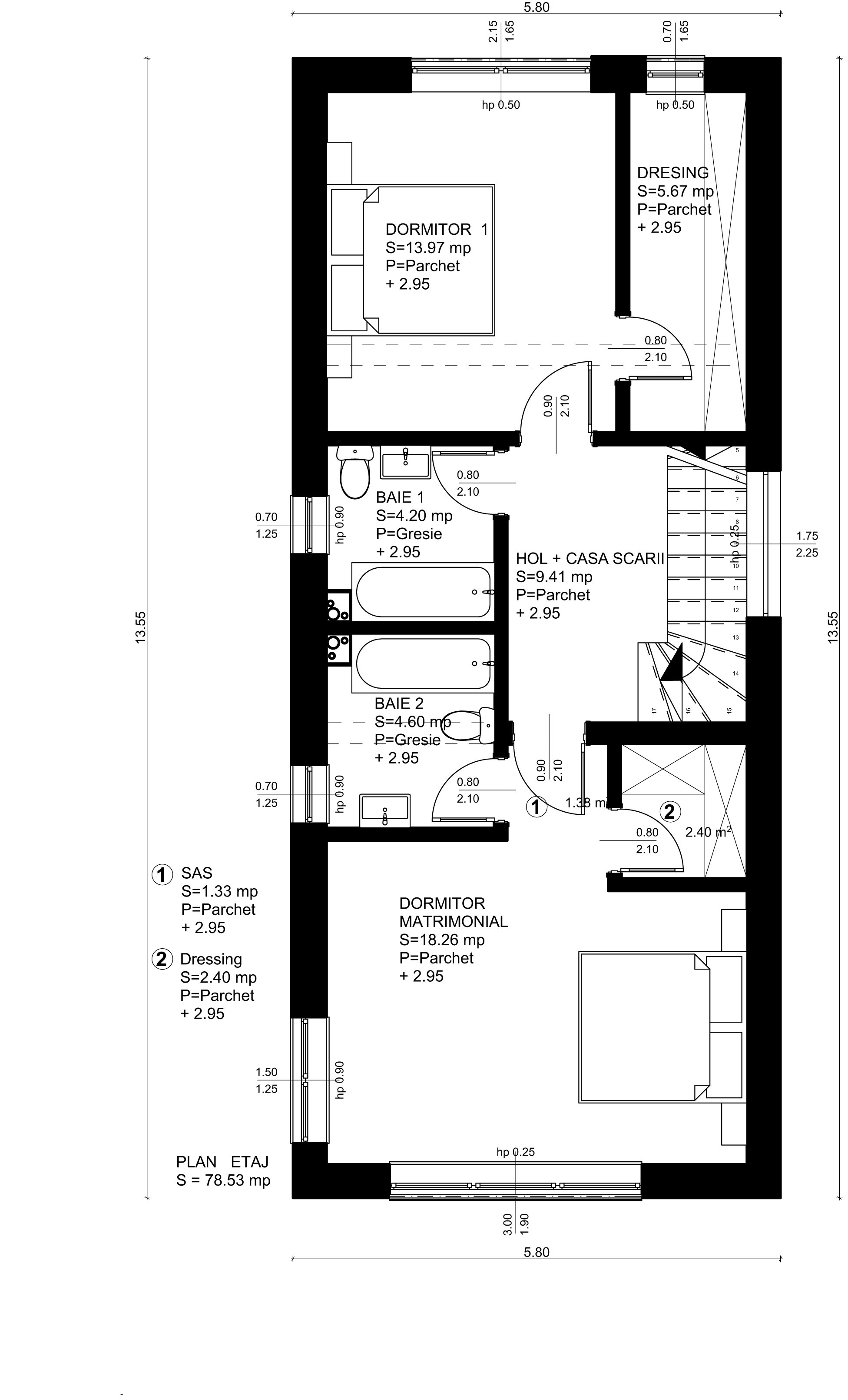
- 4. Casa Parter cu Etaj – suprafata construita la sol de 92.20 mp si suprafata desfasurata de 170.73 mp, casa are o suprafata utila totala de 130,21 mp – casa poate fi pozitionata usor pe orice tip de teren avnd o latime de 7.80 ml si o amprenta la sol redusa.
- 5. Casa Parter – suprafata construita la sol de 167.25 mp, casa are o suprafata utila totala de 133.50 mp – o casa cu un aer traditional .
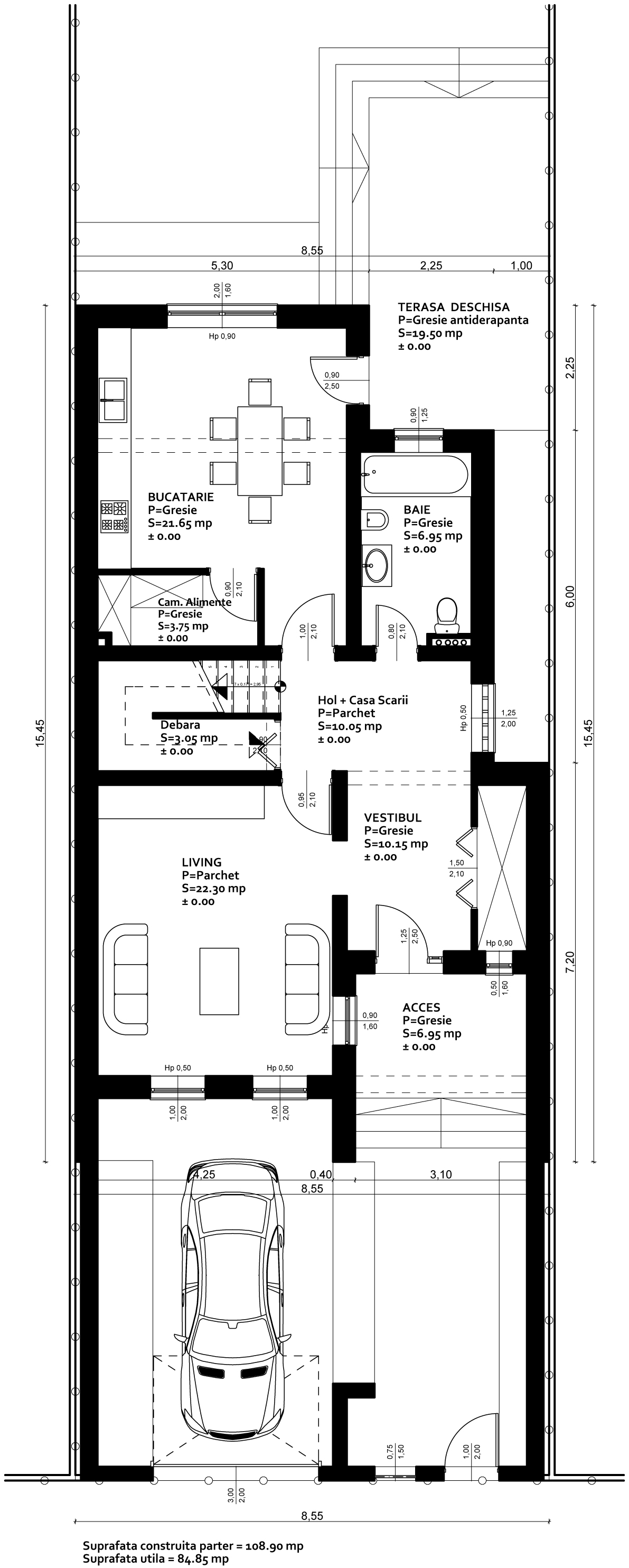
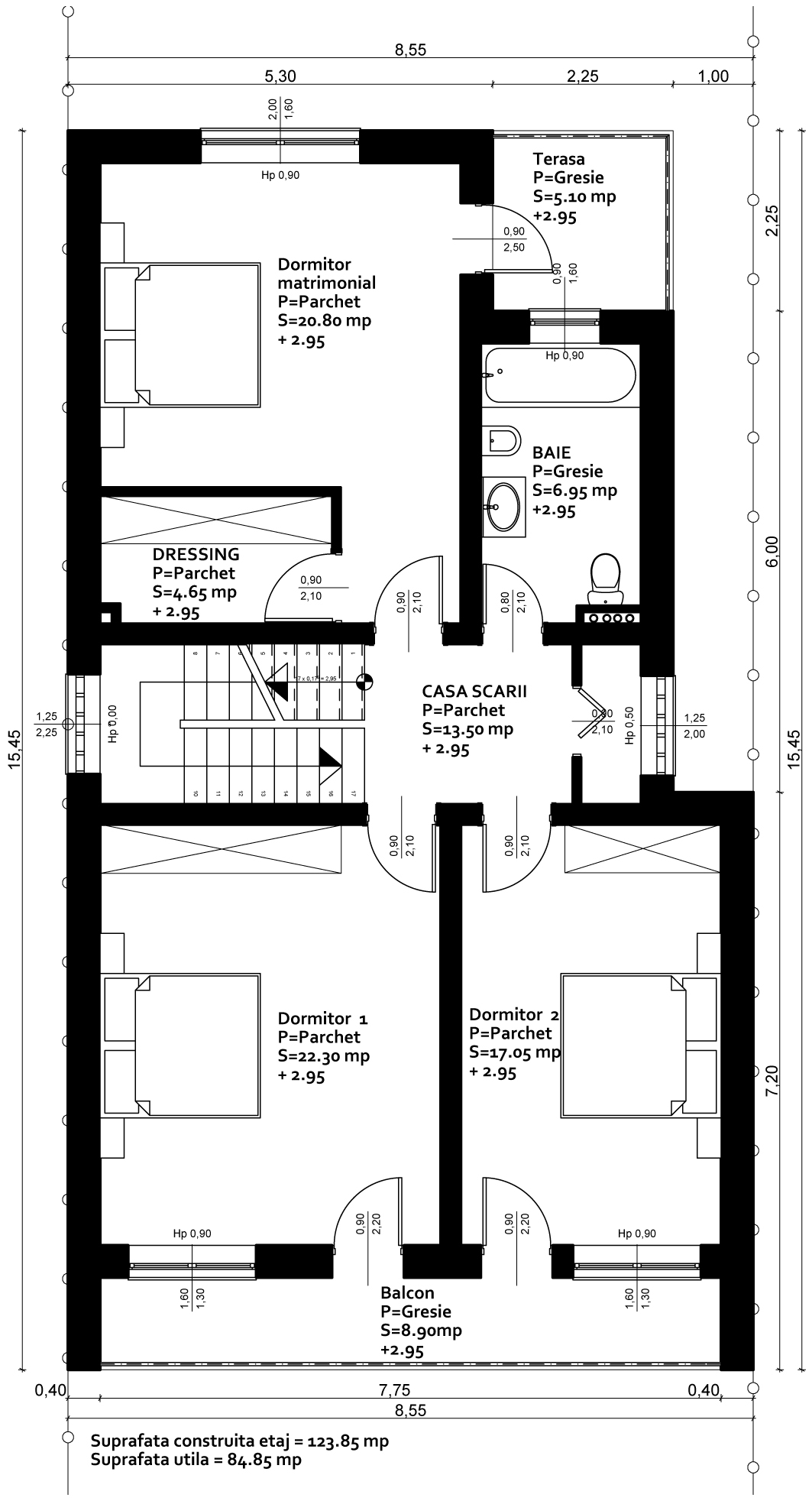
- 6. Casa Parter cu Etaj – ingusta dintr-o margine in alta – suprafata construita la sol de 108.90 mp si suprafata desfasurata de 232.75 mp, casa are o suprafata utila totala de 179 mp


- 7. Casa Parter – suprafata construita la sol de 159.50 mp si suprafata desfasurata de 206.10 mp, casa are o suprafata utila totala de 128.85 mp.
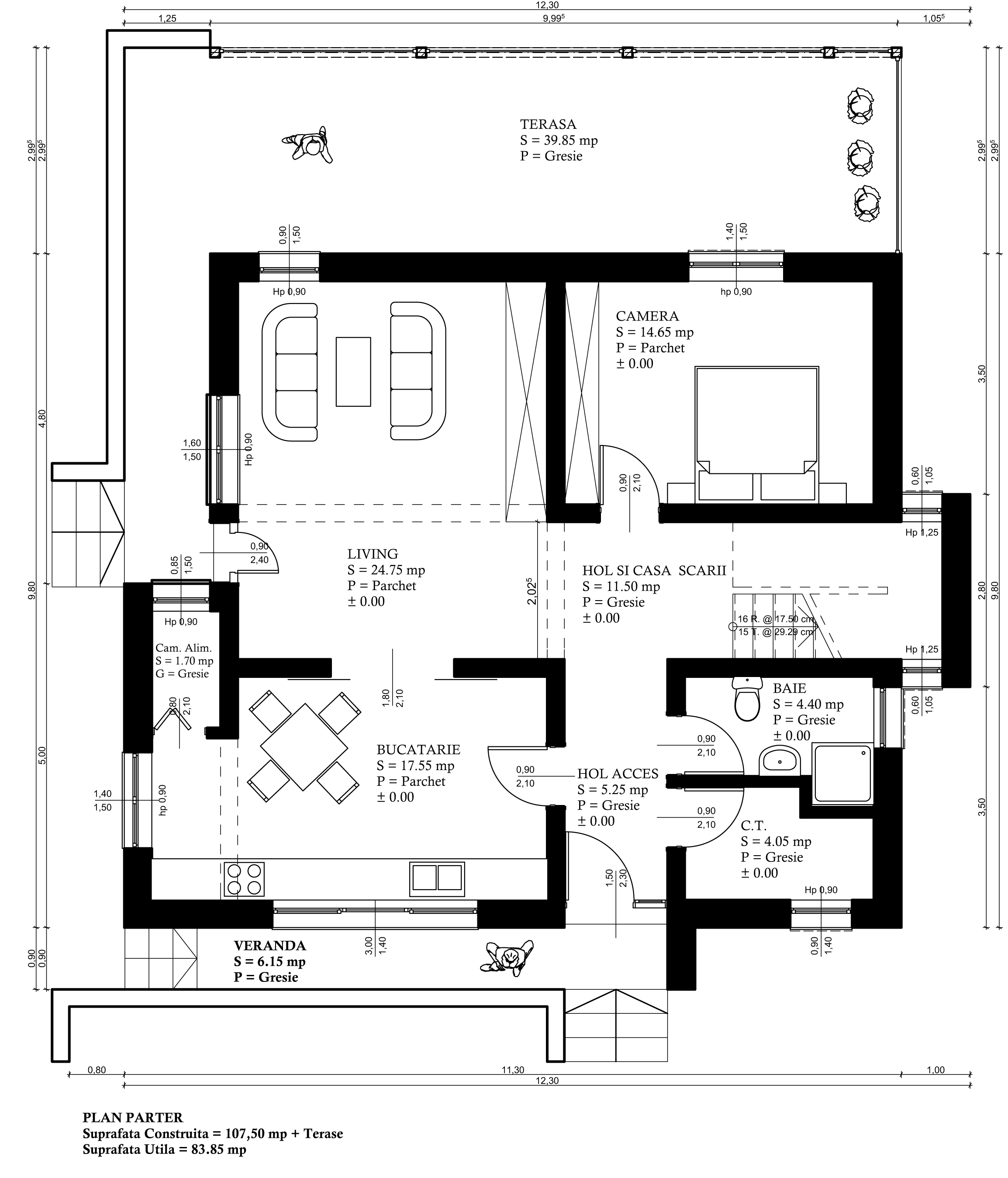
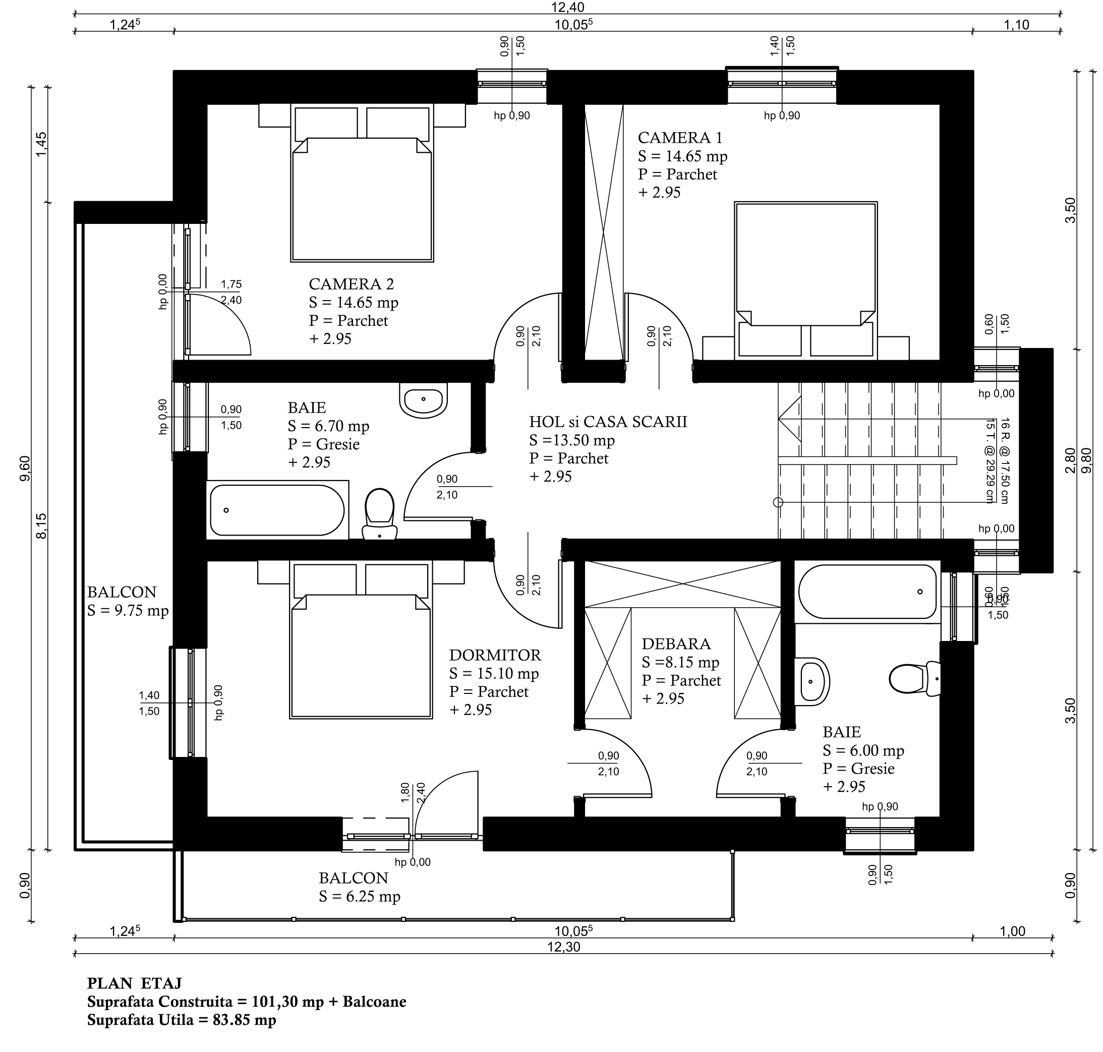
- 8. Casa Parter + Etaj – suprafata construita la sol de 107.50mp si suprafata desfasurata de 208.80 mp, casa are o suprafata utila totala de 167.70 mp
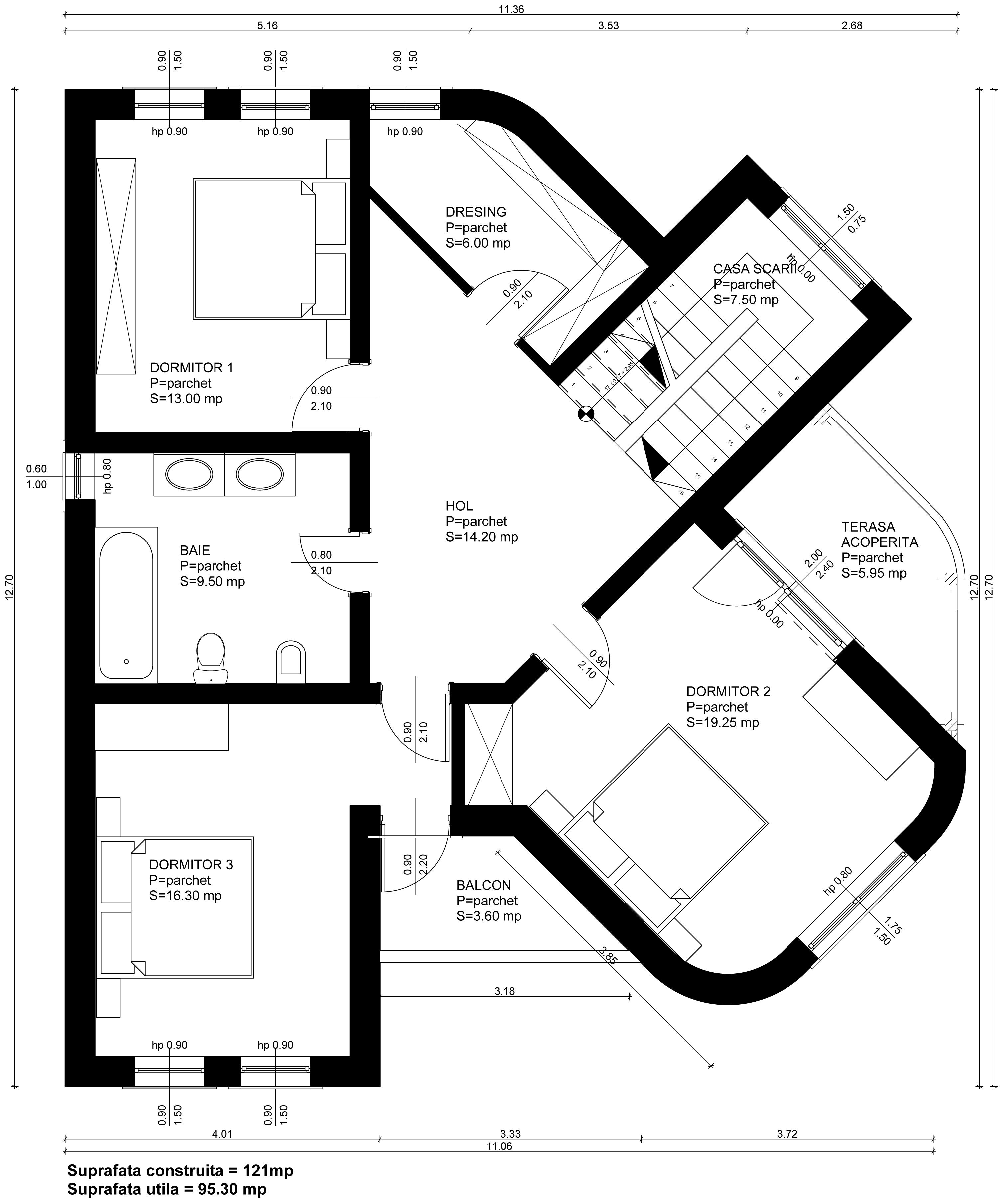
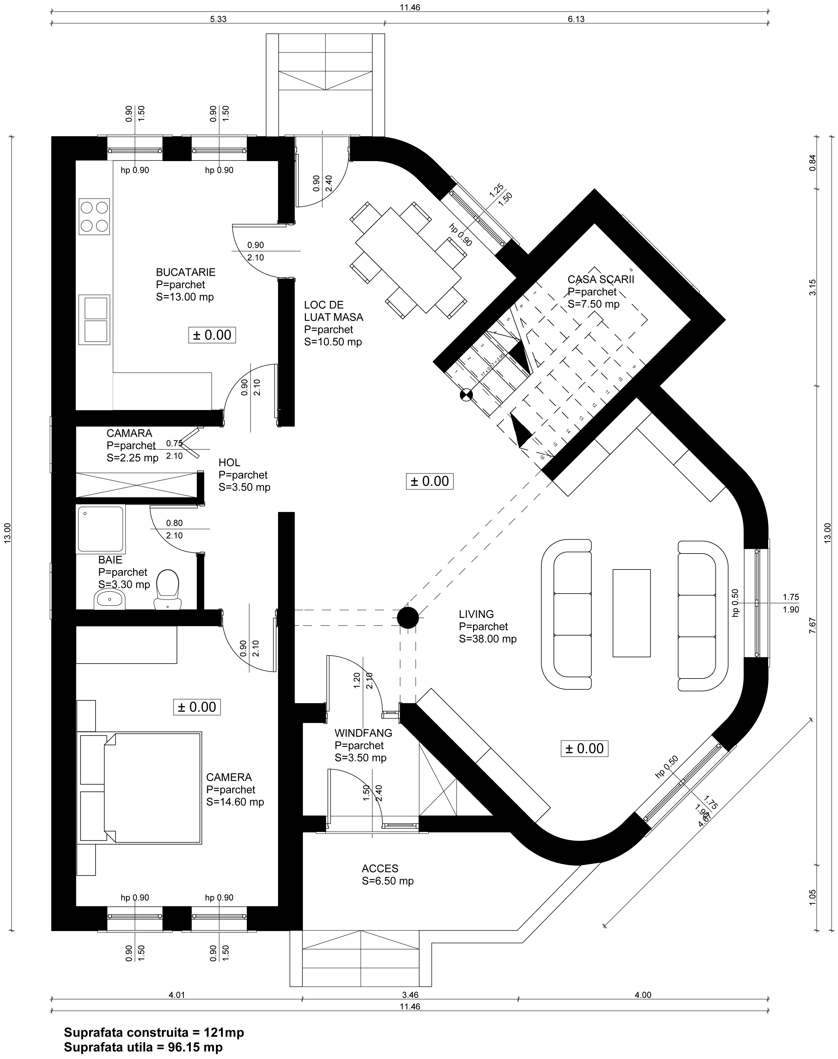
- 9. Casa Parter si Mansarda – suprafata construita la sol de 121 mp si suprafata desfasurata de 242 mp, casa are o suprafata utila totala de 191.45 mp




































































